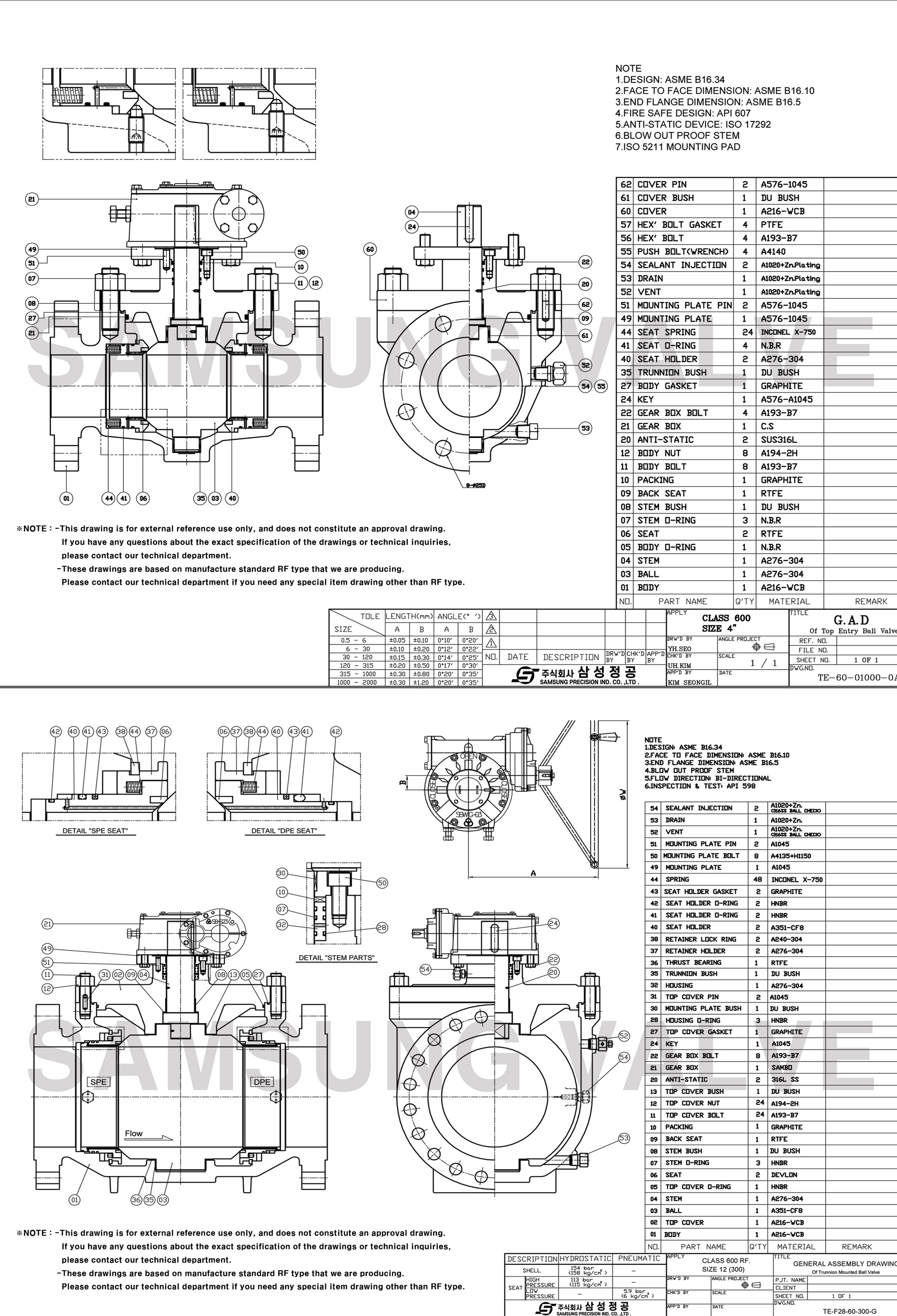
TOP ENTRY VALVE





PRODUCT SPECIFICATIONS
| DESIGN |
|---|
| ASME B16.34 |
| API 6D, API 608 |
| BS 5351 |
| JIS B 2071 |
| STRUCTURE |
|---|
| Top Entry |
| Floating Type |
| Trunnion Type |
| RATING |
|---|
| Class 150 / JIS 10K |
| Class 300 / JIS 20K |
| Class 600 / JIS 40K |
| SIZE |
|---|
| 1/2" ~ 24" / 15 ~ 600 |
| 1/2" ~ 24" / 15 ~ 600 |
| 1/2" ~ 24" / 15 ~ 600 |
| APPLICATIONS |
|---|
| Chemical and Petrochemical plants |
| Oil and Gas Production |
| Power Generation |
| Various Liquids, Steam, Slurries, |
| Solids and many other services |
| END CONNECTION |
|---|
| ASME B16.5 |
| ASME B16.25 |
| DIN EN 1092-1 / JIS B 2220 |
| RF / FF / RTJ / BW |
| FACE TO FACE |
|---|
| ASME B16.10 |
| API 6D |
| JIS B 2002 |
| TEST |
|---|
| API 598 |
| JIS B 2003 |
| BODY MATERIAL |
|---|
| Carbon Steel |
| Stainless Steel |
| Duplex Stainless Steel |
| Super Duplex Stainless Steel |
| Monel / Alloy 625 / B148-C95800 |
| SEAT MATERIAL |
|---|
| PTFE |
| RTFE (Glass, Graphite, Carbon) |
| RTFM |
| DEVLON / PEEK |
| SPECIAL |
| BORE |
|---|
| FULL BORE |
| REDUCER BORE |
| FEATURES |
|---|
| Ease of maintenance |
| Low Operating Torque |
| Excellent Sealing Performance |
| Durability and Long Service Life |
| SPE / DPE Design |







